Обяви 0 За нас Контакти
Продава 3-СТАЕН
град Пловдив, Остромила
154 150 €
301 491.19 лв.

(1 352 €, 2 644.28 лв./m2)
Цената е с включено ДДС
История на цената
Публикувана в 12:00 на 17 март, 2026 год.
Обявата е посетена 270 пъти.
Площ:
114 m2
Етаж:
4-ти от 4
Газ:
НЕ
ТEЦ:
НЕ
Строителство:
Тухла, Въведен в експлоатация 2026 г.

Описание на имота:


Референтен номер: PLV-138496

Представяме просторен тристаен апартамент в нов бутиков комплекс от затворен тип, в кв. 'Остромила' един от най-предпочитаните и бързо развиващи се райони на Пловдив.

Сградата е с Акт 14, Акт 16 е предвиден октомври 2026 г.

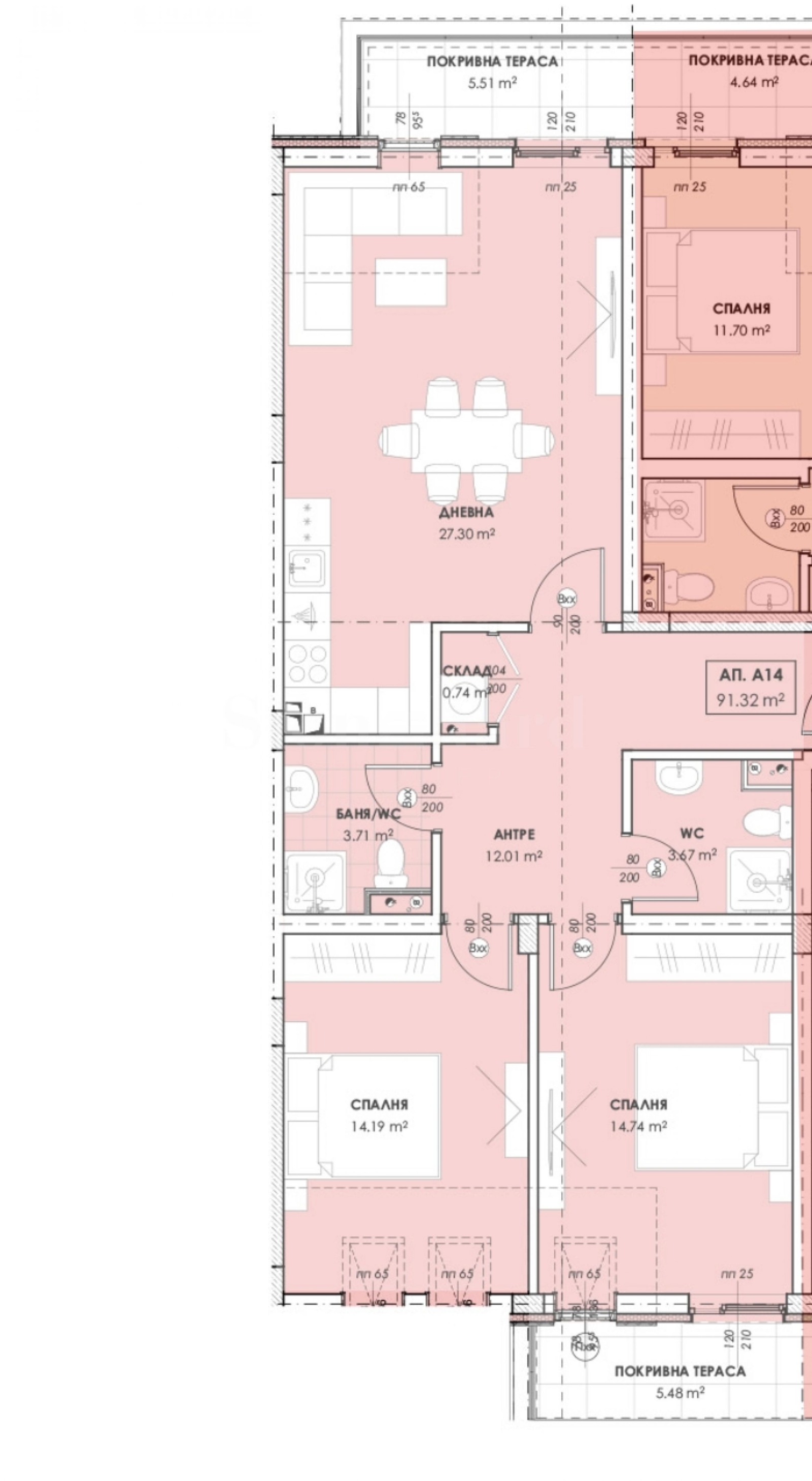
Жилището с обща площ от 114.19 кв.м е разположено на 4-ти етаж от 4, с изключително изток-запад изложение, осигуряващо прекрасна дневна светлина и ефектни залези. Част е от висок клас сграда дело на доказан инвеститор, с модерна архитектура и качествено строителство, подходящо за хора, търсещи комфорт и стил.

Състои се от:
входно антре;
просторна дневна с кухненски бокс и трапезария;
две самостоятелни спални;
две бани с тоалетни;
склад;
две покривни тераси.

Апартаментът се продава в степен на завършеност по БДС, на шпакловка и замазка. Районът предлага спокойствие, зеленина и бърз достъп до централната част на града, както и удобни транспортни връзки и нова инфраструктура.

Основни предимства:
просторни и светли помещения;
отлично разпределение;
висококачествени материали и модерни технологии на строителство;
спокойна и удобна локация;
идеален избор за семейство или инвестиция с перспектива за висока доходност.

Очакваме Вашето запитване

Ако желаете да организирате оглед на имот, който Ви интересува, или да посетите някой от нашите офиси, моля свържете се с нас. За да уговорите ден и час за среща или оглед, можете да се обадите на посочения в обявата телефон или да изпратите запитване чрез електронната поща. Нашият консултант ще Ви съдейства с всички необходими подробности и ще уговори удобно за Вас време.

Търсите подходящия за Вас имот?

Не се колебайте да се свържете с нас и да ни разкажете за Вашите нужди и предпочитания. Нашият екип ще проведе задълбочено проучване на пазара, за да Ви предложи имоти, които точно отговарят на Вашите критерии. Разполагаме с изключително портфолио ...

За повече информация свържете се с нас и цитирайте референтния номер на имота. Моля, кажете, че сте видeли обявата в този сайт.
Референтен номер: PLV-138496
Тел: +359 889 007 010
Моб: +359 877 777 888 (WhatsApp, Viber, SMS)
Отговорен брокер:Стоунхард ПРЕМИЪР
Без комисиона от купувача
Особености
Тухла
Асансьор
Контрол на достъпа
За контакт:
0889007010
Брокер:
Стоунхард ПРЕМИЪР
0889 007 010
Още оферти от брокера: Продава | Дава под наем | Купува | Наема
Агенция:
СТОУНХАРД ПРЕМИЪР В СТРАНАТА И ЧУЖБИНА
0889007010
СТОУНХАРД ПРЕМИЪР   В СТРАНАТА И ЧУЖБИНА logo
Медал за прослужено време
В imot.bg от 2018 г.
stonehardbg.imot.bg
Адрес:
област София, гр. София, бул. 'Черни връх' 51-Г, етаж 7(офис сграда Realtons Place)
ИЗПРАТИ ЗАПИТВАНЕ
ИЗПРАТИ ЗАПИТВАНЕТО

Продава 3-СТАЕН
град Пловдив, Остромила
Обява: 1c177374165199185

154 150 €
301 491.19 лв.
История на цената
(1 352 €, 2 644.28 лв./m2)

Цената е с включено ДДС
ЗАПАЗИ ОБЯВАТА

Местоположение: град Пловдив, Остромила

Допълнителни данни за имотите в района и сравнение с други райони

Покажи

Период

и 5 месеца

* Средните цени са определени чрез медианна стойност