Обяви 0 За нас Контакти
Продава 2-СТАЕН
област Благоевград, гр. Банско
126 980 €
248 351.29 лв.

(1 814 €, 3 547.88 лв./m2)
Цената е без ДДС
История на цената
Публикувана в 16:11 на 3 септември, 2025 год.
Обявата е посетена 942 пъти.
Площ:
70 m2
Етаж:
1-ви от 5
Газ:
НЕ
ТEЦ:
НЕ
Строителство:
Тухла, Ще бъде въведен в експлоатация 2027 г.

Описание на имота:


Stonehard PREMIER: www.stonehardpremier.bg
Моля, кажете, че сте видeли обявата в този сайт.
Референтен номер: STO-128777

Стартирало строителство на 'Белведере 2'! Очаквано завършване - 01.2027 г.

Ексклузивно представяме за продажба двустаен апартамент в нова сграда на популярния комплекс Belvedere Holiday Club в Банско.

Новопостроеният и вече напълно функциониращ 'Белведере Холидей Клуб' e изключителен ваканционен комплекс от висока класа, едно от най-добрите планински места за отдих в България! Комплексът е от затворен тип, състоящ се от функционални апартаменти и допълнен от превъзходни удобства и съоръжения за отдих и развлечение. Намира се в новата модерна зона на Банско, само на около 400 м от кабинковия лифт и в непосредствена близост до новия шопинг център Mall of Bansko.

Предстоящата нова сграда предлага атрактивна съвременна вентилируема фасада с HPL, в традиционните цветове на комплекса, разпределена е на 5 етажа с два входа - 'А' и 'Б', с модерен асансьор. Предлага избор от просторни студиа, двустайни и тристайни апартаменти.

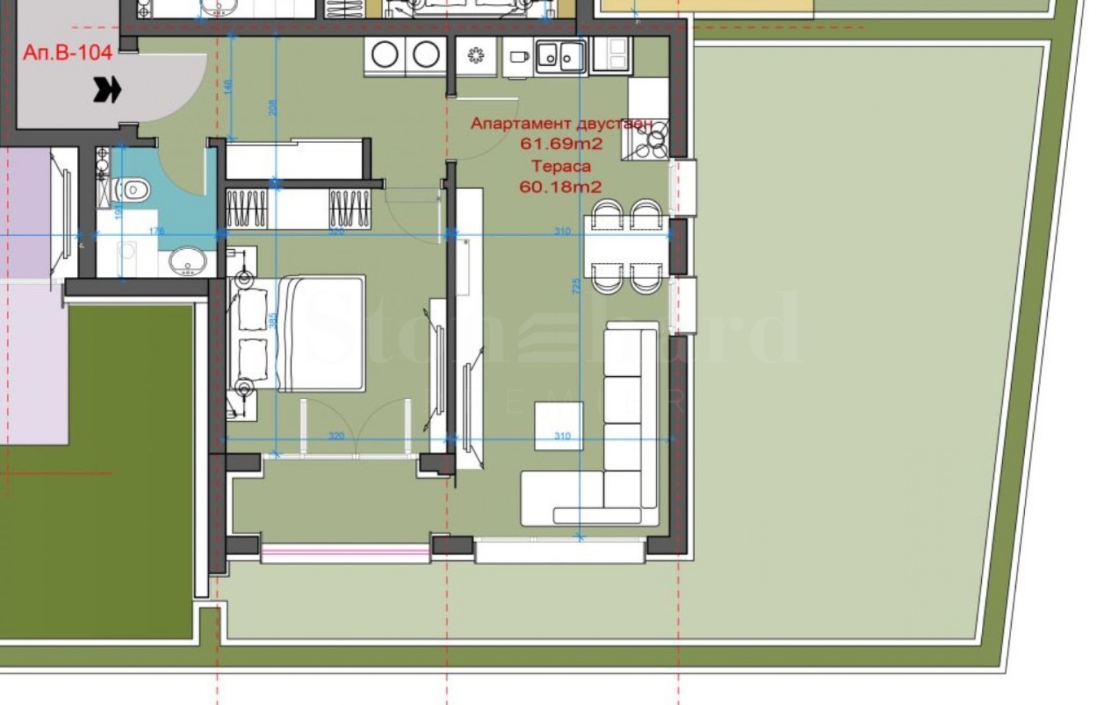
Предлаганият двустаен апартамент е с обща площ от 70.21 кв.м, разположен на 1-ви етаж с прилежаща просторна веранда от 59 кв.м. Издава се в степен на завършеност 'до ключ'.

Довършителни работи:
инсталации за отводняване на водата от климатиците - сплит и мултисплит система;
под - висококачествен ламинат и гранитогрес в коридор и кухненската част;
бани завършени, с бойлер, гранитогрес;
стени - тухли Wienerberger, вътрешни стени - тухла 25 см;
тавани - гипсова шпакловка с алуминиеви ъгли;
боя латекс - бяло;
дограма PVC - 5-камерен профил, цвят графит отвън, вътре бяло, троен стъклопакет;
парапети - метални;
врати - входни;
интериорни врати.

Технически характеристики на сградата:
облицовка - вентилируема фасада с HPL;
алуминиеви рамки на прозорците;
12 см изолация, ...

Цената на имота е 126 980 евро / 248 351.29 лв. без ДДС или 152 376 евро / 298 021.55 лв. с ДДС. Данъчен кредит може да се ползва при определени условия.

За повече информация свържете се с нас и цитирайте референтния номер на имота. Моля, кажете, че сте видeли обявата в този сайт.
Референтен номер: STO-128777
Тел: +359 889 007 010
Моб: +359 877 777 888 (WhatsApp, Viber, SMS)
Отговорен брокер:Стоунхард ПРЕМИЪР
Особености
Тухла
Асансьор
За контакт:
0889007010
Брокер:
Стоунхард ПРЕМИЪР
0889 007 010
Още оферти от брокера: Продава | Дава под наем | Купува | Наема
Агенция:
СТОУНХАРД ПРЕМИЪР В СТРАНАТА И ЧУЖБИНА
0889007010
СТОУНХАРД ПРЕМИЪР   В СТРАНАТА И ЧУЖБИНА logo
Медал за прослужено време
В imot.bg от 2018 г.
stonehardbg.imot.bg
Адрес:
област София, гр. София, бул. 'Черни връх' 51-Г, етаж 7(офис сграда Realtons Place)
ИЗПРАТИ ЗАПИТВАНЕ
ИЗПРАТИ ЗАПИТВАНЕТО

Продава 2-СТАЕН
област Благоевград, гр. Банско
Обява: 1b175690506555162

126 980 €
248 351.29 лв.
История на цената
(1 814 €, 3 547.88 лв./m2)

Цената е без ДДС
ЗАПАЗИ ОБЯВАТА

Местоположение: област Благоевград, гр. Банско